Avez-vous eu déjà l’occasion de rentrer dans un patio d’un riad marocain ou d’une hacienda espagnole ? Cette solution architecturale ancestrale, appelée patio, est un des meilleurs moyens d’offrir à un habitat un espace de fraîcheur pendant les vagues de chaleurs. Explications…
Nous avons déjà abordé ici les solutions pour éviter la climatisation. Ce premier épisode de » détail d’architecture écologique « , est l’occasion d’appréhender une technique qui permet de réduire son impact environnemental et de donner quelques exemples. Nous commençons avec le patio, cette cour intérieure de maison, espace intérieur à ciel ouvert.
Qu’est-ce qu’un patio ?
Cette solution architecturale remonte à l’époque de l’antiquité et avait une vocation fonctionnelle de « représentation » ! Depuis, ce modèle s’est décliné, de la Grèce à la Rome antique, jusqu’aux maisons arabes traditionnelles (riad du Maghreb au Moyen Orient) et aux haciendas espagnoles ou d’Amérique latine. On l’appelle également péristyle (chez les grecs) ou atrium (chez les romains), avec la particularité d’être souvent bordé de colonnes. Plus tard, l’église catholique s’est inspiré de cette architecture pour la construction de ses cloîtres. Erigés tout d’abord en bois au Ve siècle, ces bâtiments religieux furent ensuite en pierre à partir du IXe siècle.
L’atrium revient en force dans l’architecture contemporaine. Il est souvent fermé en son toit, par une dalle de verre.
Cet espace extérieur transformé en jardin d’agrément était réservé aux repas et à la détente. On y trouve souvent un point d’eau (bassin, fontaine), dont l’évaporation de l’eau participe au rafraîchissement naturel. La forme du patio provoque un effet cuvette qui protège des vents. Cette place centrale d’une maison apporte aussi une grande luminosité en son centre, accentué par le blanc immaculé des galeries ouvertes l’entourant.
Le patio, une solution adaptable à de nombreux cas
Le patio, est pour la majorité des cas, une solution lourde à mettre en place et donc souvent réserver à des projets de construction. Et si on pense immédiatement à son intégration dans une maison individuelle, le patio peut aussi s’adapter à du collectif. En voici un bel exemple.

Bureau – Le Patio par ATELIER EMPREINTE Architectes associés – La Crau (FR-83)
Si le patio ne peut facilement s’intégrer à la rénovation de bâti ancien, notamment en centre ville, il est possible de s’en inspirer en reprenant quelques éléments de son style architectural, notamment quand on dispose d’une cour intérieure :
- ajouter un point d’eau (éviter les piscines) pour favoriser l’évaporation
- végétaliser avec des plantes et des arbres pour développer l’évapotranspiration
- réaliser des murs hauts pour générer de l’ombre (dans la limite des règles locales d’urbanisme)
- créer des ouvertures autour du patio pour favoriser les échanges d’air
- éviter le béton au sol pour laisser l’eau s’imprégner en période de pluie et éviter son inertie
L’adapter à un bâti ancien, dans une cour intérieure, par exemple, nécessite aussi de penser à gérer les évacuations d’eau. Des gouttières sont nécessaires pour collecter l’eau des toits en aplomb du patio. Il faudra aussi prévoir un raccordement aux eaux pluviales (ou à un système de récupération d’eau) pour toutes les eaux ruisselantes en son centre, car en cas de gros orages, c’est l’inondation assurée.
Enfin, l’ajout d’un patio à la place d’une pergola ou d’une véranda, peut s’avérer plus intéressant pour évacuer la chaleur du bâtiment principal. Selon sa conception, notamment sur sa hauteur, le patio peut générer un effet cheminée, appelé aussi tirage thermique, sur le principe des tours aéroréfrigérantes des centrales thermiques électriques, et ainsi aspirer l’air chaud vers le haut. Ce principe demande une maîtrise parfaite de l’ingénierie du bâtiment, mais peut donc se révéler être un excellent climatiseur naturel !
6 exemples de patios contemporains
Voici 6 exemples de patios intégrés à des maisons contemporaines par des architectes à travers le monde.
Courtyard House par Leckie Studio Architecture + Design Inc.
Vancouver – Canada
Photos par Ema Peter
(+ d’infos)
The Hidden House par Aslam Sham Architects
Kozhikode – Inde
Photos par Justin Sebastian
Yeoju House par Todot Architects and Partners
Yeoju-gun, South Korea
Photos par Jinbo Choi
Fitzroy Bridge House par Matt Gibson Architecture
Melbourne, Australie
Photos par Derek Swalwell
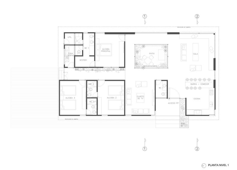
Casa buen camino par Edyfica Campestre
Casas, Colombie
Photo par Mauricio Carvajal Fotógrafo
Maison du Japon par Sandbox Studio
Sydney, Australie
Photo par Katherine Lu










































